产品展示
拦污除污系列
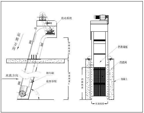
WBF转刷网蓖式格栅除污机
发布时间:2018-07-02 点击次数:5448 次

概述
WBF转刷网蓖式格栅除污机适用于城市污水处理、自来水行业、电厂进水口,同时也可作为纺织、食品加工、造纸、皮革等行业生产工艺中不可缺少的专业设备,是目前技术稳定的固液分离设备之一。
工作原理
WBF转刷网蓖式格栅除污机主要由驱动装置、机架、主轴、栅网、托渣板、固定板刷、回转刷及牵引链组成。在电机驱动下,通过减速机减速后,带动链轮与链条运动,固定在回转链条上板刷沿栅网网面由下而上移动,清扫网面并带走污物,污物运送至顶部时,大部分靠重力自行落至排渣都,少量附着在固定板刷上的污物被转动的回转刷清除掉,完成除污过程,液体则通过栅网的间隙流过,整个工作过程连续进行。
特点与应用
转刷网蓖式格栅除污机能对水中的果皮、杂草、悬浮物等容易缠绕难以卸料的杂质进行可靠的拦截和清除,有效应用于果汁制品厂、果酱制品厂、农作物制品厂等。相对于耙齿形式的细格栅,本产品优点:传动部件相对较少,工作可靠;采用便拆式结构,维护简单;设备有自洁机构,不易堵塞,不易被垃圾缠绕、容易卸料。
外形示意图
WBF转刷网蓖式格栅除污机适用于城市污水处理、自来水行业、电厂进水口,同时也可作为纺织、食品加工、造纸、皮革等行业生产工艺中不可缺少的专业设备,是目前技术稳定的固液分离设备之一。
工作原理
WBF转刷网蓖式格栅除污机主要由驱动装置、机架、主轴、栅网、托渣板、固定板刷、回转刷及牵引链组成。在电机驱动下,通过减速机减速后,带动链轮与链条运动,固定在回转链条上板刷沿栅网网面由下而上移动,清扫网面并带走污物,污物运送至顶部时,大部分靠重力自行落至排渣都,少量附着在固定板刷上的污物被转动的回转刷清除掉,完成除污过程,液体则通过栅网的间隙流过,整个工作过程连续进行。
特点与应用
转刷网蓖式格栅除污机能对水中的果皮、杂草、悬浮物等容易缠绕难以卸料的杂质进行可靠的拦截和清除,有效应用于果汁制品厂、果酱制品厂、农作物制品厂等。相对于耙齿形式的细格栅,本产品优点:传动部件相对较少,工作可靠;采用便拆式结构,维护简单;设备有自洁机构,不易堵塞,不易被垃圾缠绕、容易卸料。
外形示意图

过水流量计算
过水流量计算——
格栅每小时过水流量:
Q=K*(B-160)*h*V*3600
其中:
Q=过水流量(m³/h);
K=与格栅间隙有关的流量系数(见系数表);
B=格栅机宽(m);
h=栅前水深(m),一般按1m或低于渠深0.3m以上;
V=过流速度,一般取0.6~1m/s。
主要技术参数
过水流量计算——
格栅每小时过水流量:
Q=K*(B-160)*h*V*3600
其中:
Q=过水流量(m³/h);
K=与格栅间隙有关的流量系数(见系数表);
B=格栅机宽(m);
h=栅前水深(m),一般按1m或低于渠深0.3m以上;
V=过流速度,一般取0.6~1m/s。
主要技术参数
过流系数K
| 格栅间隙(mm) | 0.5 | 1 | 2 | 3 | 5 |
| 流量系数K | 0.08 | 0.1 | 0.12 | 0.27 | 0.36 |
注:可以采用插值法得出其他间隙对应K值的近似值。
- 上一篇:HF回转式格栅除污机
- 下一篇:ZHG型反捞式格栅除污机
相关产品





扫一扫
苏公网安备32028202232133号